News
Projekte
Büro
Buch
X Architekten
News
Projekte
Büro
Werkliste
Kontakt
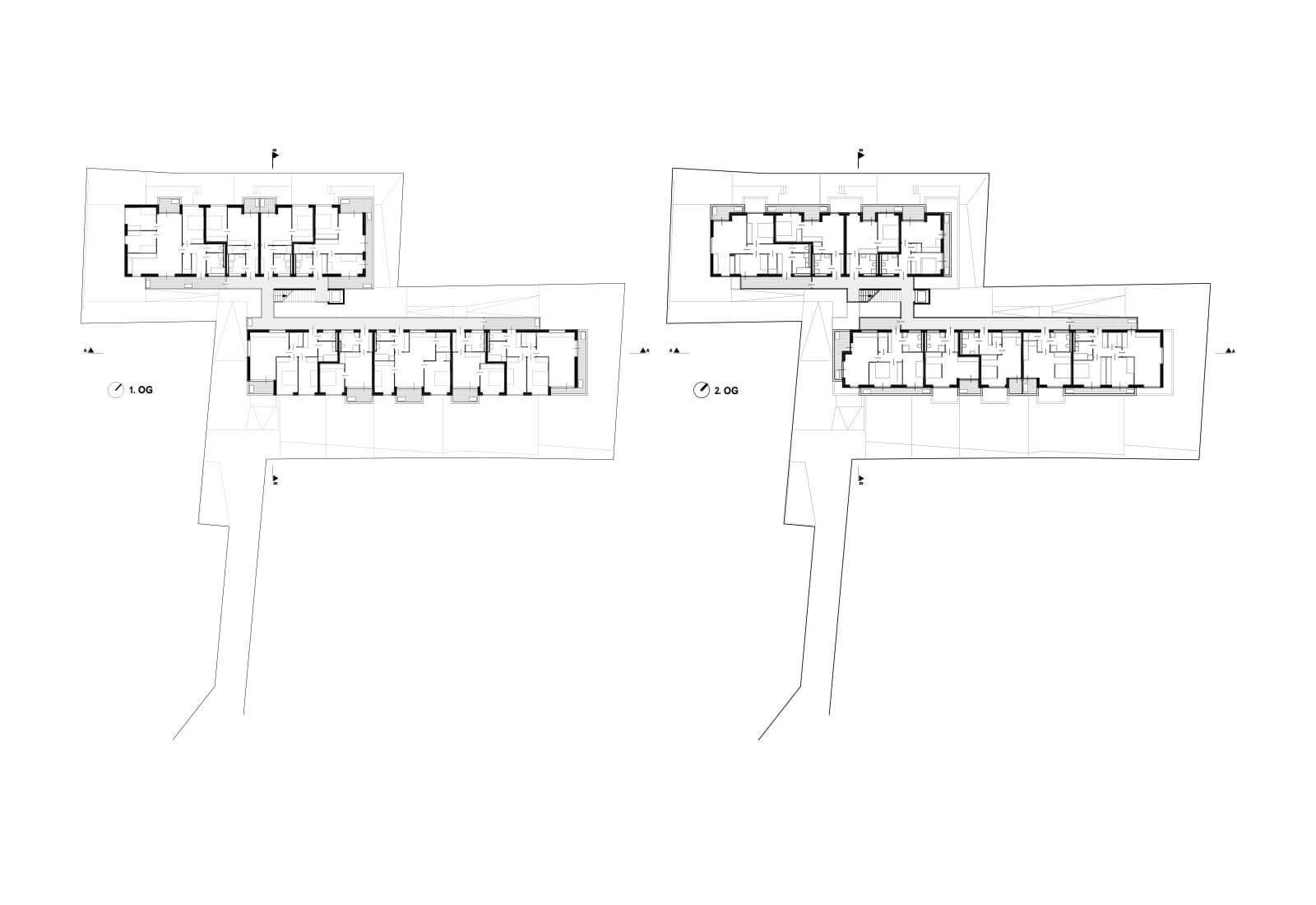
1.og_2.og