News
Projekte
Büro
Buch
X Architekten
News
Projekte
Büro
Werkliste
Kontakt
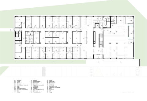
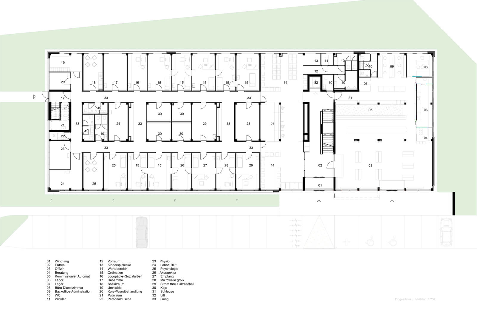
GHZ- eg -Slisdeery-Ddetailseite-1100×1600